FD Cooler, Air to Air Heat Exchanger, Force Draft Heat Exchanger,Air Recuperator
FD Cooler, Air Recuperator , Forced draft cooler,

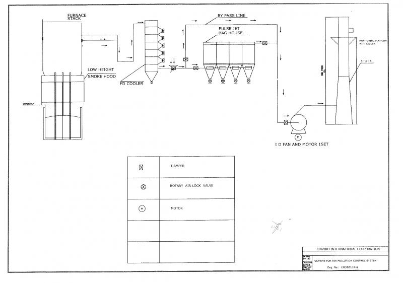
The Forced Draft Cooler is basically gas to air heat exchanger. It is used to cool the exhaust gases from the Kiln, boilers, Ferro Furnaces etc. It is used between Klin/Furnace and the air pollution control equipmenmt like ESP or bag Filter, so that bag filter /ESP can withstand the temperature of flue gases. Generally from Klin/Furaces, flues gases comes out at 950 deg C to 600 Deg C, at this temperature bag filter or ESP can nt be used, as ESP/Bag filter gets burned at this high, temperature.

Therefore, after the Klin/Furnace, flue gases are passed through the FD Cooler first, and after passing through the FD Cooler, flues gases temperature drops down to 180-200 Deg C or 120 Deg C, as per requirement. Afther this flue gases is passed through the ESP or bag filter for dedusting and exhausted out further to atmodphere through chimney. The hot gas passes through vertical tubes and ambient air is blown by fans over the tube in number of modules for cooling the flue gas. There are two to four passes in the hot gas side depending upon the quantity of flue gas and its temperature.

Unlike the gas- conditioning tower, dry type forced draught cooler does not require water and water disposal is not a problem. There are number of FD Fans for cooling. Hence there is more flexibility in regulating air flow to maintain accurate exit temperature. Cooling tube banks are of vertical design with no chance of dust accumulation. All three modes of heat transfer i.e. radiation, conduction and convection are used simultaneously to dissipate heat thereby reducing less power consumption. Also there is no requirement of compressed air for system to clear any chokeage problem,

For dust hopper is provided , as from flues gases, dust may fall, and the dust is collected in hopper and Dust is further discharged through RAL. Support structure is provided below the hopper for holding FD cooler vertical.

Cooling air is generally blown by axial fans, however, we also offer the FD cooler with cooling by centrifugal fan only.

we can also offer you ID Fan

FD Cooler Manufacturer, FD Cooler manufacturers, manufacturer of FD cooler, FD Cooler supplier, FD Cooler suppliers, Air Recuperator manufacturers, Air Recuperator supplier, Air Recuperator manufacturer, Air Recuperator suppliers,